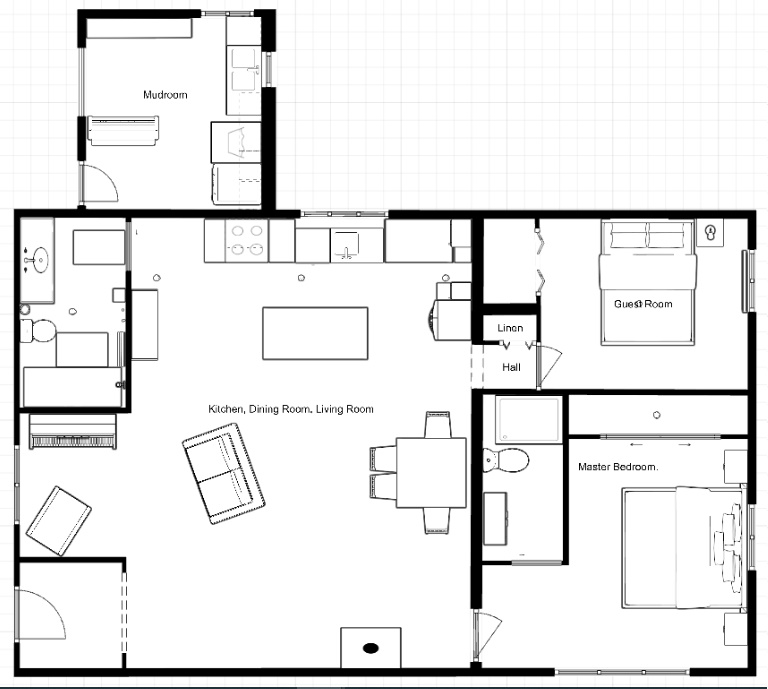
August 5, 2020 All homesteaders, farmers and those building their own homes know that EVERY.SINGLE.PROJECT has obstacles that have to be taken care of before getting to the actual project. We have learned to take them in stride. Before we build the bathroom wall, we had to take care of the rotted sill plate. Before …
